(April 2022 Update) Transparency: These are the locations and details of proposed projects up for approval by the town that I am aware of. Proposed means they have not yet been approved, but there will be votes soon (dates are listed to the best of my knowledge). If approved, they will likely not break ground for several years. Projects currently under construction are not listed here, as they were approved (likely) many years ago.
I added a small subpage for each project, where I’ll do my best to summarize and collect links to information about the proposal.

- 4/11 Planning Board – Ten Ten Business Park
- 4/11 Planning Board – Olive Chapel Professional Park Amendment
- 3/14 Planning Board – Humie Olive Commercial
- 3/14 Planning Board – Tingen Road
- 4/11 Planning Board – North Salem Station
- 4/11 Planning Board – Townes at Pleasant Park
- 4/11 Planning Board – Arden at Summit Pines
- 4/11 Planning Board – Sweetwater Amendment
- Planning Board 5/9/2022 Wimberly Road
- 5/9 Planning Board – Morris Acres Road
Morris Tract PUD
This is a resubmission of a denial from a few years back. They initially proposed apartments, then townhomes, both turned down by the Council. This submission is a combination of townhomes and single family. Application: https://www.apexnc.org/DocumentCenter/View/38187/22CZ05?bidId= Planning Board: Will be heard on 5/9/2022 Town Council: Will be heard on 5/24/2022
804+808 Wimberly Road
This rezoning is located in the “Rural Density” portion of the Apex long range plan, currently designated for 1 unit per 5 acres. This rezoning (on 5 acres) proposes to increase the density to allow 4 units, or .68 units per acre. Application: https://www.apexnc.org/DocumentCenter/View/38186/22CZ04?bidId= Planning Board: Will be heard on 4/11 Town Council: Will be…
Sweetwater Amendment
An amendment to the Sweetwater project is being proposed. There are two proposed changes: 1, changes concerning the interchange with 64 (the application mentions a conceptual design), and 2, a reduction in the Office Space requirement (from 80k sq ft to 55k sq ft). Application: https://www.apexnc.org/DocumentCenter/View/38185 Planning Board: Will be heard on 4/11/2022 Town Council:…
Arden at Summit Pines
Arden is a mixed use, age restricted high density project (seniors only apartment building with some commercial by the road) location on Jenks Road, near a bunch of new developments including White Oak. Application: https://www.apexnc.org/DocumentCenter/View/37927 Planning Board: Will be heard on 5/9/2022 Town Council: Will be heard on 5/24/2022
Townes at Pleasant Park
The Townes at Pleasant Park is a townhome community in the vicinity of the Holland/Old US1/Humie Olive intersection that is seeing so much focus recently. It is a “workforce housing” community, which is a term generally understood to be more affordable than what is typically on the market, but not quite subsidized affordable housing. Generally…
North Salem Station
North Salem Station is a high density residential development at the intersection of N Salem and Laura Duncan. Application: 21CZ29 (apexnc.org) Planning Board: Scheduled for 4/11/2022 Town Council: Scheduled for 5/10/2022
1010 Tingen Road
A small (2.27acres) “medium-high” density community next to Apex Elementary. The application states it will be designed and built similar to the adjacent Westhaven community. Application: 21CZ27 (apexnc.org) Planning Board: Will be heard at the 5/9/2022 meeting Town Council: Will be heard at the 5/24/2022 meeting
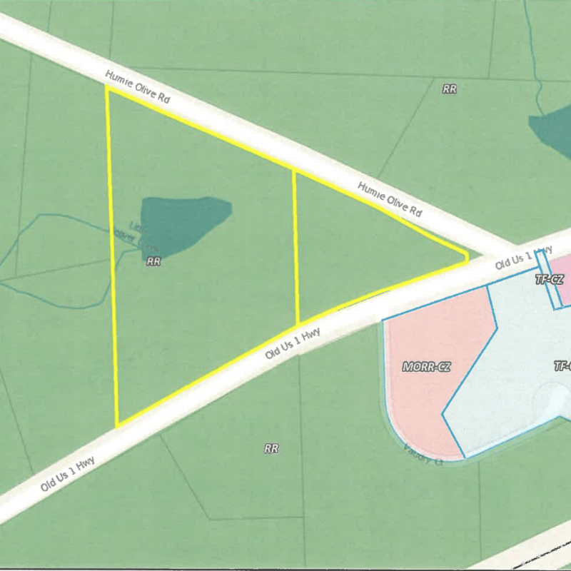
Humie Olive Commercial
Across the street the Holland Rd Assembly, these two parcels are being proposed to be rezoned to commercial (consistent with the 2045 Land Use Map designation for this intersection). Application: 21CZ26 (apexnc.org) Planning Board: Will be heard at the 4/11/2022 meeting Town Council: Will be heard at the 4/26/2022 meeting
Olive Chapel Professional Park Amendment
This appears to be an application to modify the uses allowed at the Olive Chapel Professional Park located on Olive Chapel Road, across the bridge from Publix. Application: 21CZ18 (apexnc.org) Planning Board: Will be heard at the 5/9/2022 meeting Town Council: Will be heard at the 5/24/2022 meeting
Ten Ten Business Park
A small (5 acre) business park on the south side of Ten Ten, just past Reliance. Application: 21CZ17 (apexnc.org) Planning Board: Will be heard at the 5/9/2022 meeting Town Council: Will be heard at the 5/24/2022 meeting